6h + k + khh + s + p 184 000 €
Suodatin
Kaikki kategoriat
Valitse kategoria
30 listaukset - katso kaikki tiedot
Hae kaikista maista
Sijainti
Hae kaikista maista
  • Finland
  • Estonia
Lappi
Hae alueen mukaan
Hae alueen mukaan
  • Kemi
  • Rovaniemi
  • Tornio
  • Äkäslompolo
  • Ivalo
  • Kaulinranta
  • Raattama
  • Inari
  • Simo

6h + k + khh + s + p

№20814
Luotu: 12.12.2024
6h + k + khh + s + p  Ylitornio - valokuva 1
6h + k + khh + s + p  Ylitornio - valokuva 2
6h + k + khh + s + p  Ylitornio - valokuva 3
6h + k + khh + s + p  Ylitornio - valokuva 4
6h + k + khh + s + p  Ylitornio - valokuva 5
6h + k + khh + s + p  Ylitornio - valokuva 6
6h + k + khh + s + p  Ylitornio - valokuva 7
6h + k + khh + s + p  Ylitornio - valokuva 8
Osoite: Hermanninkuja 2, 95600 Ylitornio, Ylitornio, Pohjois-Pohjanmaa, Finland, Näytä Kartalla kartalla
Lyhyt kuvaus: 6h + k + khh + s + p
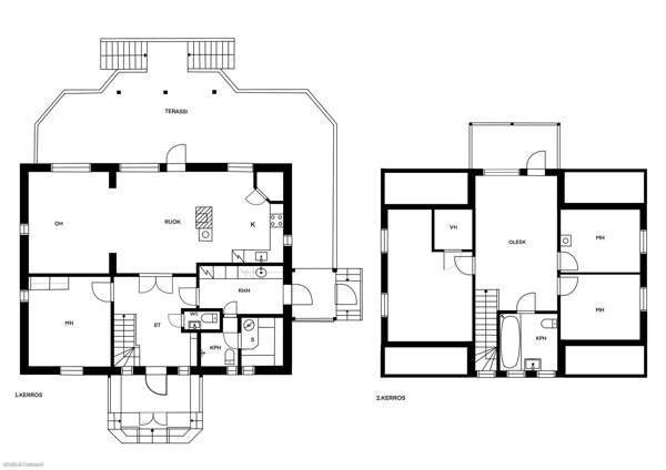
Huoneluku: 6
Kokonaispinta-ala: 180m2
Asuinpinta-ala: 158m2
Kerrosluku: 2
Remontit: Tehdyt remontit: Ulkovuori maalattu 2021, kuistit
Parveke: kyllä
Rakennustyyppi: Omakotitalo
Kunto: Hyvä
Sauna: kyllä
Rakennuksen Vuosi: 2007
Omakotitalo lähellä palveluita Omalla tontilla sijaitseva, huolella rakennettu persoonallinen koti etsii uutta omistajaa. Kahteen kerrokseen rakennettu talo on valmistunut v. 2007, jonka jälkeen sitä on uudistettu useaan otteeseen. Alakerrassa on keittiö ja olohuone, joiden välissä tilaa lämmittää leivinuuni-takka. Kodinhoitohuone ja pesutilat sijaitsevat alakerrassa, kuten myös yksi talon neljästä makuuhuoneesta. Yläkerrassa on makuutilojen lisäksi toinen olohuone, kylpyhuone, sekä joki- ja vaaramaisemiin avautuva lasitettu parveke. Talo on rakennettu teräspaalujen päälle, jonka johdosta maaperän kosteus ei vaivaa ja talon alle jää runsaasti säilytystilaa. Lisätilaa on myös piharakennuksessa, jossa on autokatos ja varastohuone. Jos kiinnostuit kuulemaan ja näkemään lisää, jätä minulle soittopyyntö viestillä, niin otan yhteyttä Voit tiedustella myös talon vuokraus mahdollisuutta
№20814
Luotu: 12.12.2024
Kirjaudu sisään tai Rekisteröidy jättääksesi kommentin.
184 000 €
Minna Sandqvist
Oli verkossa 11 heinäkuuta 2025 18:56
Takaisin ylös