Фильтр
Искать во всех странах
Место нахождения
Искать во всех странах
  • Финляндия
  • Эстония
Уусимаа
Искать по выбранному региону
Искать по выбранному региону
  • Helsinki
  • Sibbo
  • Вантаа
  • Вихти
  • Керава
  • Киркконумми
  • Ловийса
  • Лохья
  • Мянтсяля
  • Нурмиярви
  • Порвоо
  • Туусула
  • Хювинкяя
  • Эспоо
  • Ярвенпяя
  • Lapinjärvi
  • Raasepori
  • Klaukkala
  • Reijola
  • Söderkulla
  • Hanko
  • Loviisa

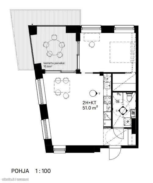
2h + avok + parveke

№20642
Создано: 01.12.2026
2h + avok + parveke  Helsinki - изображение 1
Адрес: Verkkosaarenranta 14, 00580 Helsinki, Helsinki, Уусимаа, Финляндия, Показать На карте на карте
Short Desc: 2h + avok + parveke
Количество комнат: 2
Общая площадь: 51м2
Жилая площадь: 51м2
Этаж: 2
Этажность дома: 8
Parveke: Да
Тип строения: Kerrostalo
Состояние: Хорошее
Vapautuu: 31.12.2026
Debt-free price: 278460
Rakennuksen Vuosi: 2025
Valoisia asuntoja meren ääressä TULE MUKAAN RAKENTAMAAN! Verkkosaaren rantaan on rakentumassa yhteisöllinen taloyhtiö, jossa ei tingitä laadusta. Yhteisenä päämääränämme on suunnitella hyvä paikka asua alhaisilla vastikkeilla, eli koti vaikka loppuiäksi! Asunnoissa on pyritty tilallisesti ja arkkitehtonisesti korkeatasoiseen lopputulokseen ilman pitkiä käytäviä tai pimeitä nurkkia. Tarkalla suunnittelulla on varmistettu asuntojen valoisuus, laadukas materiaali- ja varustetaso sekä parvekkeet merinäköalalla. Asuntojen huonekorkeudet ovat korkeimmillaan 3,2 metriä. Laatua asumiseen tuo myös lattiaviilennys, välikerrosten ääntä eristävä paikallaanvalu sekä aidosti viihtyisät yhteistilat merinäköaloilla. Asukkaiden yhdessä rakennuttamia pienkerrostaloja yhdistää suojaisa ja vehreä oleskelupiha. Rustiikkinen punatiiliverhoilu ja tyylikäs rakennusta halkova lasinen porraskäytävä varmistaa, että asukkaiden uniikista ylpeydenaiheesta tulee näyttävä lisä Verkkosaaren rannalle. Asumisen kustannukset pysyvät alhaisina kiitos rakennusten A-energiatehokkuuden, maalämmön ja omaksi lunastetun tontin. Asuntojen neliöhinnat pidetään kurissa mm. tekemällä suunnittelu- ja rakennusaikana paljon itse. Keskeisiin tehtäviin on palkattu ammattilaiset: arkkitehdit ja projektipäällikkö, suunnittelijat ja rakennusvalvojat. Kun gryndaaja, eli voittoa tavoitteleva rakennuttaja puuttuu välistä, on myös asuntojen neliöhinta katteen verran alhaisempi, eli et maksa ylimääräistä suositusta sijainnista meren äärellä! Asunto-osakeyhtiön perustajajäsenenä et myöskään maksa varainsiirtoveroa. YHTEISÖLLISYYTTÄ KAUPUNGIN YTIMESSÄ Poijusta tulee yhteisöllinen kerrostalo, jossa on luksustasoisia yhteisiä tiloja, kuten merinäköaloilla ja lasiseinillä varustettu kattosauna sekä takkahuone, toimiva talopesula, monipuolinen pyöränkorjausverstas, vierashuone sekä keittiö- ja ruokailutila, jonka voit halutessasi varata yksityistilaisuuksiin. PARHAAT KAUPAT TEHDÄÄN NYT! Nyt on erinomainen hetki rakentamiselle. Urakoitsijoilla on pula töistä, joten tekijöitä löytyy ja hinnoittelu joustaa. Materiaalien hinnat ovat laskeneet ja korot ovat vihdoin laskusuunnalla. Tule mukaan rakennuttamaan – vielä ehdit vaikuttaa oman kotisi suunnitteluun ja ratkaisuihin! Tavoitteena on aloittaa rakentaminen vuonna 2025, jolloin koti on muuttovalmis loppuvuodesta 2026. ASUNTOJA JA AUTOPAIKKOJA VIELÄ VAPAANA! Kerrostaloja rakentuu kaksi, yhteensä 34 asuntoa. Näistä asunnoista on vielä moni vapaana! Tutustu pohjapiirroksiin ja kustannusarvioihin hankkeemme kotisivuilla: www.verkkosaari.fi HUOM! Asunnon ostaja on sitoutunut edistämään vuokratontin lunastusta asunto-osakeyhtiön nimiin. Ilmoitettu hoitovastike on ilman tontinvuokraa. Mahdollinen tontinlunastus rahoitetaan yhtiölainalla, jota lyhennetään osakkailta perittävillä pääomavastikkeilla. Omarahoitusosuus pysyy samana ja yhtiölainaosuus kasvaa ton
№20642
Создано: 01.12.2026
Зарегистрируйтесь или авторизуйтесь чтобы оставить комментарий.
Verkkosaaren Poiju Tapio Huotari
Был онлайн 11 июля 2025 18:56
Наверх